VO201 Gran terreno 2690m2 Copiapo

Copiapó, Atacama Terrenos residenciales Venta

UF $24.938

Descripción

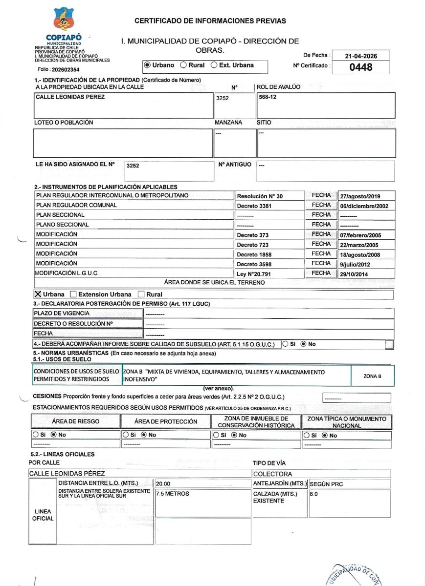
Amplio terreno listo para tu proyecto, con 2.690 m2, y situación tecnico legal regularizada es ideal para: - Proyecto mixto de vivienda - Equipamiento - Talleres y almacenamiento inofensivo - Clasificación Zona B. Tenemos los documentos necesarios para que realice proyecto de cavida, segun sus necesidades. Se adjunta Cip e imgen de plano planta. Valor de venta 24.938 UF + 2% + IVA de comisión que incluye carpeta técnico legal, pre-estudio títulos, redacción de promesa e instrucciones notariales. Contactanos para detalles. En VYAOK hacemos mas fácil tus proyectos de vida.

Detalles
  • Código: KP508066
  • Tipo: Terrenos residenciales
  • Estado: Activa
  • Localidad: Copiapó
  • Provincia: Atacama
  • País: Chile
  • Piso: No definido
  • Metros totales: 156.00
  • Metros cubiertos: 156
  • Tamaño terreno: 2690
  • Ancho terreno: 26.00
  • Largo terreno: 104
  • Año construcción: 1990
  • Precio venta: UF 24938
Características
  • Admite mascotas
Ubicación
  • Calle J Leonidas Perez 3252, Copiapó, Atacama, Chile
Únete a AINA