Locales comerciales nuevos en Vicuña Mackenna, cerca a metro irarrázaval y Ñuble

Metro Irarrázaval, Ñuñoa Locales comerciales Arriendo

UF $43,81

Descripción

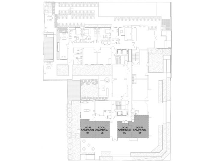
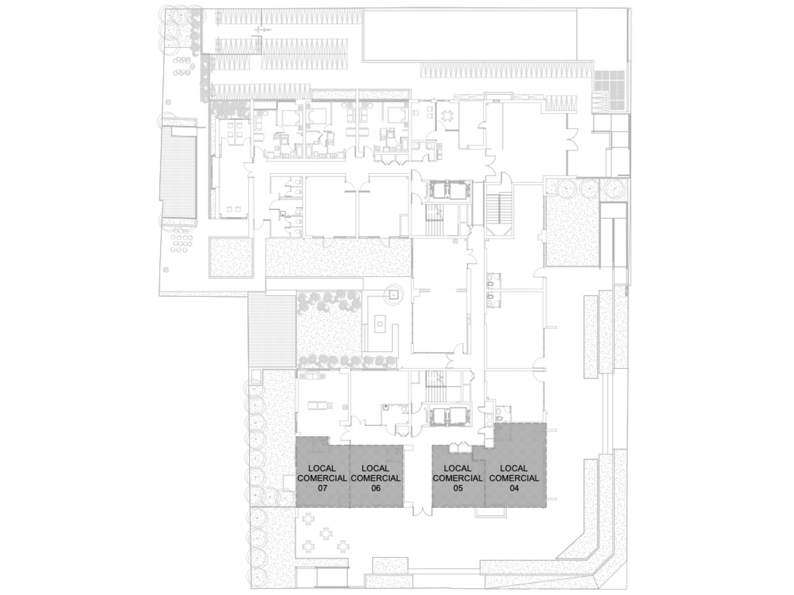
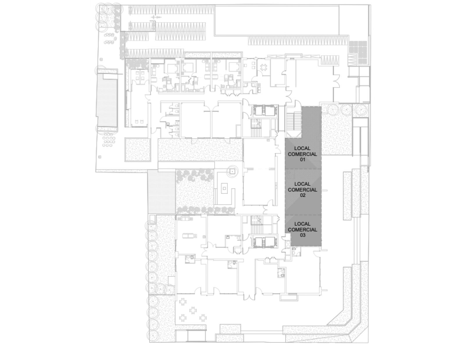
En Vicuña Mackenna, entre metro ñuble y metro irarrázaval, se encuentra un edificio multifamily con 190 departamentos y 7 locales comerciales en bruto. 4 locales DISPONIBLES: Local 2: 48.68 m2 Local 5: 28,54 m2 Local 6: 32,7 m2 Local 7: 35,36 m2 ¡¡Promoción los primeros 3 años!! Primer año: Local 2: 43.81 UF + IVA Local 5: 19.98 UF + IVA Local 6: 22.89 UF + IVA Local 7: 24.75 UF + IVA Segundo año: Local 2: 48.68 UF + IVA Local 5: 22.83 UF + IVA Local 6: 26.16 UF + IVA Local 7: 28.29 UF + IVA Tercer año: Local 2: 53.55 UF + IVA Local 5: 25.69 UF + IVA Local 6: 29.43 UF + IVA Local 7: 31.82 UF + IVA Siguientes años: Local 2: 48,68 UF + IVA Local 5: 28,54 UF + IVA Local 6: 32,7 UF + IVA Local 7: 35,36 UF + IVA Características: - Gastos Comunes: 0,1 UF/m2 - Damos entre uno o dos meses de gracia para habilitar el local. Terminaciones: - Piso: Piso de Radier afinado para recibir pavimento - Paredes: En obra gruesa. - Cielo: Losa de hormigón e instalaciones a la vista. - Sistemas de seguridad de detección de humo e instalaciones de red húmeda contra incendios. - Sistema monofásico 40A, (es posible cambiar a trifásico) - Cortinas eléctricas. - Todos los locales tienen baño habilitado. Requisitos de Arriendo: - Titular con sueldo líquido 3 veces el valor del arriendo y debe contar con un Aval. - Duración de contrato mínimo para validar promoción es de 2 años. - Contratación: 2 meses de Garantía + Comisión corretaje: 1 renta promedio + IVA o 2% del total de años de transacción. Coordine su visita al +56 9 3933 7494 o al correo: [email protected]

Detalles
  • Código: KP480678
  • Tipo: Locales comerciales
  • Estado: Activa
  • Zona: Avenida Vicuña Mackenna 1449
  • Barrio: Metro Irarrázaval
  • Localidad: Ñuñoa
  • Provincia: RM (Metropolitana)
  • País: Chile
  • Ambientes: 1
  • Baños: 1
  • Piso: 1
  • Pisos en el edificio: 15
  • Metros totales: 48.68
  • Metros cubiertos: 48.68
  • Tamaño terreno: 48.68
  • Ancho terreno: 0.00
  • Año construcción: 2023
  • Expensas: 5.00
  • Precio arriendo: UF 43.81
Video
image
Ubicación
  • Avenida Vicuña Mackenna 1449, Metro Irarrázaval, Ñuñoa, RM (Metropolitana), Chile
Únete a AINA