Clínica u Oficina en Venta en Villa Alemana

VILLA ALEMANA, Villa Alemana Locales comerciales Venta

UF $9.900

Descripción

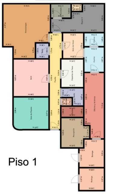
Clínica con excelente ubicación en pleno centro de Villa Alemana Propiedad habilitada como clínica, ubicada a solo dos cuadras de la estación Metro Villa Alemana, en una de las esquinas más visibles y transitadas de la ciudad. Rodeada de bancos, restaurantes, servicios públicos y comercio, ofrece una conectividad inmejorable. El inmueble se desarrolla en dos niveles sobre un terreno de 280 m² y una superficie construida de 227 m², con accesos diferenciados y espacios adaptados para funcionamiento inmediato. Distribución: - Primer piso: sala de espera, recepción, baños públicos (incluyendo acceso universal), consultorio, sala de yeso, sala de rayos, amplia sala de kinesiología, cocina y espacios para el personal. Incluye áreas de bodega internas y una bodega exterior. - Segundo piso: tres amplios consultorios, sala de espera independiente y baños. Construcción sólida en albañilería reforzada, en muy buen estado de conservación, con cielos altos, buena iluminación natural y orientación norponiente. Cuenta con aire acondicionado, sistema de seguridad, acceso universal y conexión a redes de datos. Ideal para continuar con uso médico o reconvertir a centro de especialidades, laboratorio, clínica dental, oficinas profesionales o servicios de salud integrales. SANHER Propiedades

Detalles
  • Código: KP470528
  • Tipo: Locales comerciales
  • Estado: Activa
  • Zona: VILLA ALEMANA
  • Localidad: Villa Alemana
  • Provincia: Valparaíso
  • País: Chile
  • Dormitorios: 10
  • Baños: 4
  • Cocheras: 2
  • Piso: 2
  • Pisos en el edificio: 2
  • Metros totales: 227.00
  • Metros cubiertos: 227
  • Año construcción: 1994
  • Precio venta: UF 9900
Video
image
Ubicación
  • Buenos Aires 599, VILLA ALEMANA, Villa Alemana, Valparaíso, Chile
Únete a AINA