Amplias Oficinas Nuevas Lo Barnechea

UF $93

Descripción

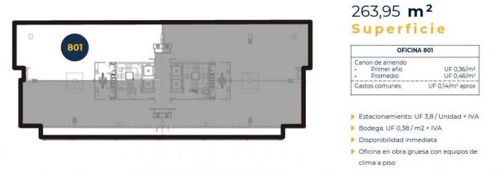
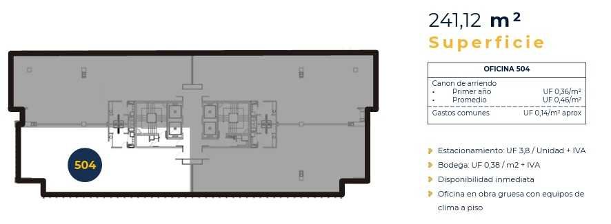
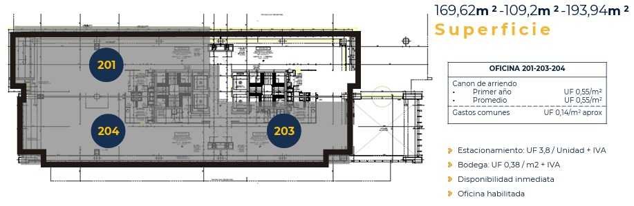
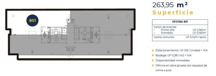
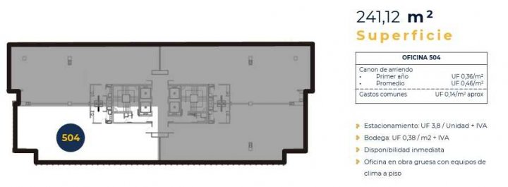
Nuevo edificio de oficinas ubicado estratégicamente en el centro de La Dehesa e inserto en exclusivo proyecto ZOCO, el cual contempla dos edificios de oficinas, exclusivo centro comercial, un Hotel y dos edificios Multifamily. Excelente conectividad dado acceso directo por Av. La Dehesa y cercanía a autopista Costanera Norte, conectando con el resto de la ciudad de Santiago en pocos minutos. Las oficinas se ofrecen en obra gruesa con equipos de clima y con versatilidad de arrendar el piso completo u oficinas de menor tamaño, según requerimiento. *Superficie 241,12 mts Oficina 501 Valor mt2. UF 0,36/m2 Estado. Obra Gruesa con equipo de clima a piso *Superficie 263,95 mts Oficina 801 Valor mt2. UF 0,36/m2 Estado. Obra Gruesa con equipo de clima a piso *Superficie 169,62 mts Oficina 201 Valor mt2 UF 0,55/m2 Estado. Habilitada Moderno edificio de 8 pisos con 4 ascensores de última generación. Año de construcción: 2021 Sistema centralizado para detección y extinción de incendio Parking subterráneo Bicicletero y camarines de alto nivel Terrazas en 9° piso para realización de eventos Sistema de climatización Chiller Sistema de control de acceso y CCTV

Detalles
  • Código: KP468503
  • Tipo: Oficinas
  • Estado: Activa
  • Zona: LO BARNECHEA
  • Localidad: Lo Barnechea
  • Provincia: RM (Metropolitana)
  • País: Chile
  • Baños: 2
  • Piso: 2
  • Pisos en el edificio: 8
  • Metros totales: 169.00
  • Metros cubiertos: 169
  • Año construcción: 2022
  • Expensas: 1.00
  • Precio arriendo: UF 93
Ubicación
  • Av. La Dehesa 101, LO BARNECHEA, Lo Barnechea, RM (Metropolitana), Chile
Vista 360º
Únete a AINA